土木工程学院第十六届“建筑怡情”系列活动之室内设计大赛圆满落幕啦!在这场创意与专业碰撞的盛会中,同学们大显身手,用独特的设计理念勾勒出一个个令人惊叹的室内空间。


本次大赛意义非凡,旨在全方位激发大家的设计灵感,让平日里所学的专业知识真正“动”起来,在实践的舞台上绽放璀璨光芒。同时,也为同学们搭建了锻炼创新能力的平台,进一步丰富了我们多姿多彩的校园文化生活。



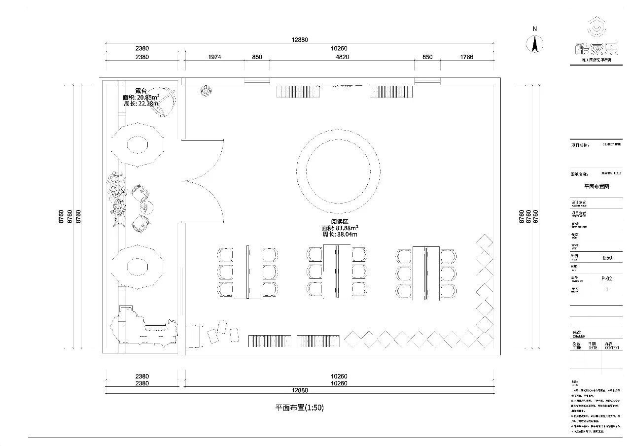
经过紧张而激烈的角逐,专业老师们化身“火眼金睛”的评审团,从功能布局的合理性、表现效果的震撼力、方案的实际可行性以及创意亮点的独特性等多个维度,进行了严谨细致的评分。最终,一批闪耀着智慧光芒的优秀作品脱颖而出,它们不仅是设计者创意与努力的结晶,更是室内设计魅力的生动诠释。
专业组一等奖:潘思颖、李彦凯
非专业组一等奖:卢智增、赖峥宇、潘昌进、陈艺涵
非专业组二等奖:陈文烽
非专业组三等奖:邓荣清、梁春苗、朱舒雅、李慧
非专业组三等奖:朱舒雅、梁春苗
非专业组优秀奖:高彩婷、陈银华、林嘉欣
让我们向这些获奖同学表示热烈祝贺!
大赛虽已结束,但设计的热情永不落幕。期待未来同学们能带来更多精彩的创意作品,在室内设计的领域里不断探索、突破!
(撰稿人:张诗茹;初审:叶倩楠;复审:张敏;终审:张敏)